
- 288 pages
- English
- ePUB (mobile friendly)
- Available on iOS & Android
About this book
Verb Crisis examines architectural solutions to the extraordinary conditions of an increasingly dense and interdependent world.It presents innovative projects and research through original photos, essays, and exclusive interviews with key figures from architecture and urban planning to environmental, economic, and global affairs. Confronted by shifting densities and uncharted urban transformations, Crisis tackles the conflict between the physical limits of architectural design and the demands on the practice for an updated social relevance. Featuring: FOA, Teddy Cruz, Shigeru Ban, Elemental, Boris B.Jensen, Hilary Sample, John May, Jacobo García Germán, Markus Miessen, Interboro Partners, MVRDV, and Takuya Onishi.
Tools to learn more effectively

Saving Books

Keyword Search

Annotating Text

Listen to it instead
Information



























Table of contents
- Dubai: Global City Guaranteed?
- Case Study: Dubai or Learning from Junk Space Deluxe
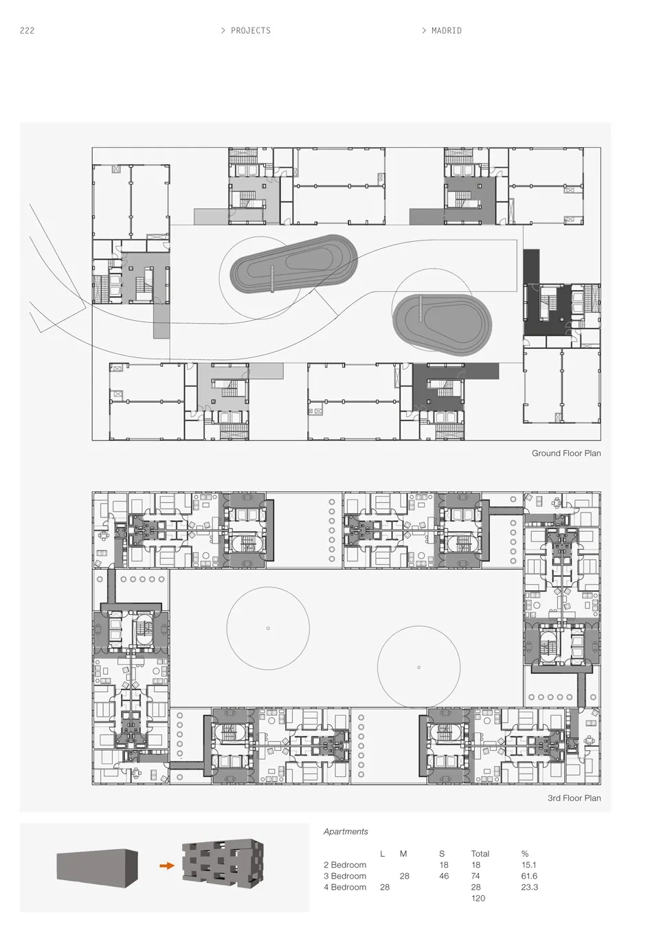
- Madrid: The Rise of the Residential Periphery
- Tijuana/San Diego: Border Neighborhoods
- Iquique, Chile: Building on the Chilean Slum
- Detroit: Defunct City?
- BioMed City
- Fresh Kills, New York
- Fresh Kills, New York: Jessika Creedon
- On Technology, Ecology, and Urbanism
- Twelve Years of Emergency Architecture
- Residential Periphery: Alejandro Zaera Polo
- Residential Periphery: Jacob van Rijs
- Residential Periphery: Jacobo García-Germán
- Architecture: Participation, Process, and Negotiation
- The City as a Source of Equity
- Violating Consensus
- Substitune
- Experimental Emergency Architecture
- Building the Periphery
- Improve Your Lot!
- Manufactured Sites
- Quinta Monroy, Iquique
Frequently asked questions
- Essential is ideal for learners and professionals who enjoy exploring a wide range of subjects. Access the Essential Library with 800,000+ trusted titles and best-sellers across business, personal growth, and the humanities. Includes unlimited reading time and Standard Read Aloud voice.
- Complete: Perfect for advanced learners and researchers needing full, unrestricted access. Unlock 1.4M+ books across hundreds of subjects, including academic and specialized titles. The Complete Plan also includes advanced features like Premium Read Aloud and Research Assistant.
Please note we cannot support devices running on iOS 13 and Android 7 or earlier. Learn more about using the app