Originally published in 1925 by the Harris, McHenry & Baker Company of Elmira, New York, this authentic plan book advertises 101 "modern homes," selected from several thousand submitted designs. Chosen for aesthetic appeal as well as utility of arrangement and economy of construction, the houses encompass a truly impressive array of sizes and styles. Now this meticulous reproduction of the company's plan book offers modern readers a look back at these charming residential homes of the 1920s.
Detailed floor plans with measurements and an actual photograph of the completed dwelling accompany each model. Designs include "The Stratford," a Tudor-style brick-and-stucco home with a library and servants' quarters; "The Northcliff," a three-bedroom Dutch colonial with a sun parlor; "The Belvedere" and "The Strathmore," attractive two-family homes; and many others.
Invaluable for restoring residences remodeled in the past, this handy volume will be of particular interest to owners of houses built in the 1920s as well as to restorers and preservationists in search of authentic plans.

- 112 pages
- English
- ePUB (mobile friendly)
- Available on iOS & Android
eBook - ePub
About this book
Trusted by 375,005 students
Access to over 1.5 million titles for a fair monthly price.
Study more efficiently using our study tools.
Information
Topic
ArchitectureSubtopic
History of ArchitectureTable of Contents
Title Page
Copyright Page
DOVER BOOKS ON ARCHITECTURE
Index


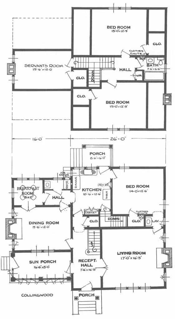
The COLLINGWOOD (Size 42x34’)
It is appreciation that humanity really is seeking and not gold. Gold, gained honestly or dishonestly, is in turn paid for appreciation and applause. He is most appreciated by friend and neighbor who contributes to his community a substantial home of The Collingwood design, and unselfishly shares his comforts and pleasures with those of his kind.

The first step toward home ownership is to secure a set of plans so that correct cost estimates may be made.

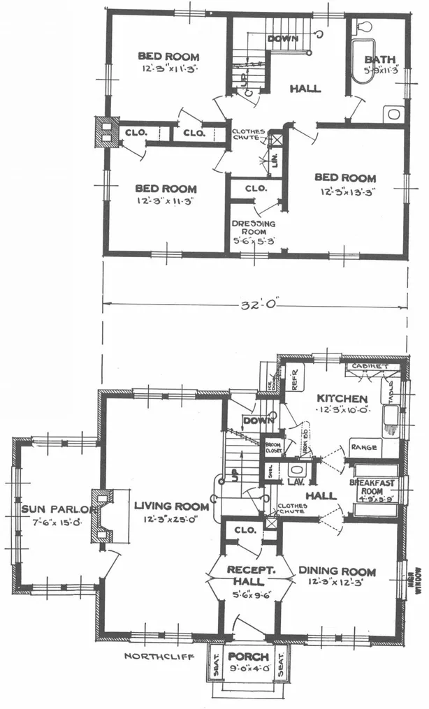
The NORTHCLIFF (Size 32x26’)
Every movement for human betterment first finds expression in the home. There is something in the inner being of optimistic men and women which prompts them to lend a hand to the helpless and give a word of cheer to the cheerless. Those who make The Northcliff their home will be prompted daily to radiate the sunshine its comforts will bring.


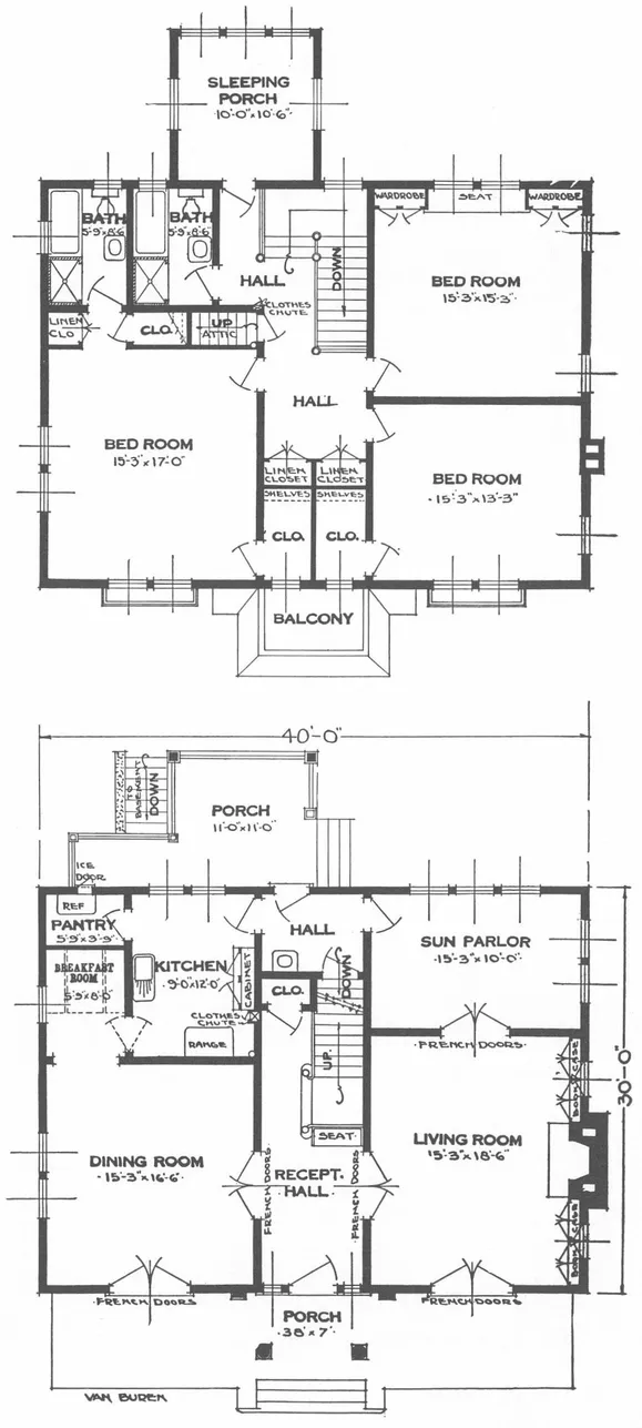
The VAN BUREN (Size 40x30’)
Clean men, both of hand and heart, are invariably the product of happy home unions. It is around the harmonious hearthstone where the glow of mutual interest and understanding temper the finer senses that men mould character of sterling worth. It would be a violation of a natural law if homes in The Van Buren class should produce other than men of clean purpose.


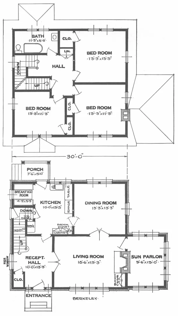
The BERKELEY (Size 30x28’)
It is around the fireside of happy homes where children chatter with glee and loving mothers watch over them with divine care that the best and noblest thoughts of men are generated. The germs of selfishness, envy and greed have little chance to multiply in homes of the substantial character of The Berkeley. From such homes come men quick of thought and fair of judgment.


The MARDEN (Size 30x28’)
All mothers should be free from those things which disturb and distress. They should at all times feel a sense of restfulness, serenity, peace and poise. Conditions for such a state of mind cannot be found in crowded districts, but rather in ideal private homes, in The Marden class, where only those influences are permitted which tend to satisfy and soothe the maternal senses.


The WEBSTER (Size 28x36’)
Those only are great who love and are kind, and these greatest of human faculties are best developed in the home. Those who strive hardest to attain a home, strive hardest for the development of the best in themselves and in turn bring out the best in others they meet. Striving for a home such as The Webster elevates, educates and ennobles.


The CARLYLE (Size 34x28’)
Humanity’s earnest call is f...
Table of contents
- Title Page
- Copyright Page
- Table of Contents
- DOVER BOOKS ON ARCHITECTURE
- Index
Frequently asked questions
Yes, you can cancel anytime from the Subscription tab in your account settings on the Perlego website. Your subscription will stay active until the end of your current billing period. Learn how to cancel your subscription
No, books cannot be downloaded as external files, such as PDFs, for use outside of Perlego. However, you can download books within the Perlego app for offline reading on mobile or tablet. Learn how to download books offline
Perlego offers two plans: Essential and Complete
- Essential is ideal for learners and professionals who enjoy exploring a wide range of subjects. Access the Essential Library with 800,000+ trusted titles and best-sellers across business, personal growth, and the humanities. Includes unlimited reading time and Standard Read Aloud voice.
- Complete: Perfect for advanced learners and researchers needing full, unrestricted access. Unlock 1.5M+ books across hundreds of subjects, including academic and specialized titles. The Complete Plan also includes advanced features like Premium Read Aloud and Research Assistant.
We are an online textbook subscription service, where you can get access to an entire online library for less than the price of a single book per month. With over 1.5 million books across 990+ topics, we’ve got you covered! Learn about our mission
Look out for the read-aloud symbol on your next book to see if you can listen to it. The read-aloud tool reads text aloud for you, highlighting the text as it is being read. You can pause it, speed it up and slow it down. Learn more about Read Aloud
Yes! You can use the Perlego app on both iOS and Android devices to read anytime, anywhere — even offline. Perfect for commutes or when you’re on the go.
Please note we cannot support devices running on iOS 13 and Android 7 or earlier. Learn more about using the app
Please note we cannot support devices running on iOS 13 and Android 7 or earlier. Learn more about using the app
Yes, you can access 101 Classic Homes of the Twenties by Harris, McHenry & Baker Co. in PDF and/or ePUB format, as well as other popular books in Architecture & History of Architecture. We have over 1.5 million books available in our catalogue for you to explore.