
- 192 pages
- English
- ePUB (mobile friendly)
- Available on iOS & Android
eBook - ePub
Classic Houses of the Twenties
About this book
For home restorers, preservationists, architectural historians or anyone interested in American domestic architecture of the 1920s, this unabridged republication of a rare plan book from that era will be an invaluable resource. Published by the Loizeaux building-supply and lumber companies of New Jersey in 1927, it includes illustrations and floor plans for 134 houses in many styles — New England Colonial, Dutch Colonial, Gothic or half-timber, Modern English, Italian, Spanish Mission, and more.
Ranging in price from less than $4,000 to over $13,000, these homes offer a fascinating cross section of the most popular building styles in America over 60 years ago. For each home, the catalog provides an illustration of the exterior, complete floor plans with dimensions, costs and a brief description of the features and advantages of the house. Helpful commentary is often included: "The living room should offer an invitation to relax mentally and physically. Comfortable chairs, shaded lights, and soft-tone hangings, draperies and walls will help create the homelike, restful atmosphere so desirable in a living room. For the decoration of the living room walls, tans, medium brown, warm gray, old blue, gray, green and other soft colors are excellent."
In addition to complete plans, the catalog also includes plumbing and bathroom fixtures, wiring, closet fixtures, tiling, heaters, and other necessities. The result is an authentic reference guide for a wide range of homes still extant in American cities and towns. For anyone seeking to buy or restore one of these houses, the Loizeaux plan book represents an unparalleled resource containing original plans, detailed descriptions, dimensions and prices.
Ranging in price from less than $4,000 to over $13,000, these homes offer a fascinating cross section of the most popular building styles in America over 60 years ago. For each home, the catalog provides an illustration of the exterior, complete floor plans with dimensions, costs and a brief description of the features and advantages of the house. Helpful commentary is often included: "The living room should offer an invitation to relax mentally and physically. Comfortable chairs, shaded lights, and soft-tone hangings, draperies and walls will help create the homelike, restful atmosphere so desirable in a living room. For the decoration of the living room walls, tans, medium brown, warm gray, old blue, gray, green and other soft colors are excellent."
In addition to complete plans, the catalog also includes plumbing and bathroom fixtures, wiring, closet fixtures, tiling, heaters, and other necessities. The result is an authentic reference guide for a wide range of homes still extant in American cities and towns. For anyone seeking to buy or restore one of these houses, the Loizeaux plan book represents an unparalleled resource containing original plans, detailed descriptions, dimensions and prices.
Frequently asked questions
Yes, you can cancel anytime from the Subscription tab in your account settings on the Perlego website. Your subscription will stay active until the end of your current billing period. Learn how to cancel your subscription.
No, books cannot be downloaded as external files, such as PDFs, for use outside of Perlego. However, you can download books within the Perlego app for offline reading on mobile or tablet. Learn more here.
Perlego offers two plans: Essential and Complete
- Essential is ideal for learners and professionals who enjoy exploring a wide range of subjects. Access the Essential Library with 800,000+ trusted titles and best-sellers across business, personal growth, and the humanities. Includes unlimited reading time and Standard Read Aloud voice.
- Complete: Perfect for advanced learners and researchers needing full, unrestricted access. Unlock 1.4M+ books across hundreds of subjects, including academic and specialized titles. The Complete Plan also includes advanced features like Premium Read Aloud and Research Assistant.
We are an online textbook subscription service, where you can get access to an entire online library for less than the price of a single book per month. With over 1 million books across 1000+ topics, we’ve got you covered! Learn more here.
Look out for the read-aloud symbol on your next book to see if you can listen to it. The read-aloud tool reads text aloud for you, highlighting the text as it is being read. You can pause it, speed it up and slow it down. Learn more here.
Yes! You can use the Perlego app on both iOS or Android devices to read anytime, anywhere — even offline. Perfect for commutes or when you’re on the go.
Please note we cannot support devices running on iOS 13 and Android 7 or earlier. Learn more about using the app.
Please note we cannot support devices running on iOS 13 and Android 7 or earlier. Learn more about using the app.
Yes, you can access Classic Houses of the Twenties by Loizeaux in PDF and/or ePUB format, as well as other popular books in Architecture & History of Architecture. We have over one million books available in our catalogue for you to explore.
Information
You Plan Your Home of Dreams
—for lifetime service
All this enjoyment is made available by the installation of complete wiring.
When you make a purchase on which you depend for lifetime service, your thought is “how good” rather than “how cheap.” This is especially true when the best costs but little more than an inferior product. It is in the highest degree true of a wiring installation. You must make the original installation both adequate and convenient. You will never see the most important part—the part that is hidden behind the walls; you cannot inspect it before buying. How then shall you choose?
One sure and safe way is to specify a G-E Wiring System.
The G-E Wiring System is a system of housewiring each part of which is designed and made by one manufacturer, the General Electric Company. A system of housewiring in which adequate outlets conveniently controlled render a complete and permanent service.
The G-E Wiring System is a unit installation planned by leading architects and engineers, each part of which is designed and made to fit the other.
The G-E Wiring System is installed by a group of electrical contractors who are equipped to plan for adequacy, convenience and lifetime service.
Material is guaranteed by General Electric.

The heart of the home where the G-E Wiring System amply provides for all the convenience essential to comfortable living.
The result is a wiring installation—a G-E Wiring System—made up of quality material assuring safety, permanence and full value for money expended. An installation providing for adequate control and proper distribution of light through proper location of outlets and switches. An installation which assures convenient sources of current for lamps and appliances.
To aid you in planning the wiring of your home, a forty-page book has been published. This book, The Home of a Hundred Comforts, is a treatise on housewiring containing a description on the proper layout of the wiring for each room, and in addition, detailed floor plans showing the application of the general principles contained in the descriptive matter.
You may obtain a copy by addressing the Merchandise Department, General Electric Company, 1285 Boston Ave., Bridgeport, Connecticut. Write for your copy. Study it. Learn how convenient electrical service can be made.
Go to an electrical contractor who installs the G-E Wiring System and with the aid of The Home of a Hundred Comforts, plan with him the wiring of your new home. Wires laid back of lath and plaster are there to stay. Do it right. Install a G-E Wiring System—for lifetime service.

Here, with every thought for the comfort and conveniences of the woman of the house the G-E Wiring System proves its value.

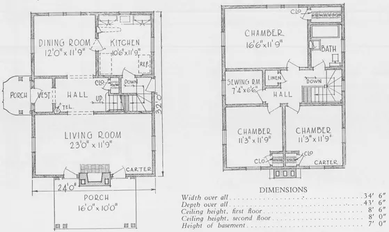
The CARTER
THE shingled exterior, the asbestos shingle roof, the well planned interior and the many modern conveniences all combine to make a most desirable colonial home.

Sun Parlor
Every home should have a sun parlor where space permits. The cost of adding a sun parlor to your home will more than be repaid in the comfort and cheerfulness which it gives.

“The ARKWRIGHT”
STUCCO, shingles, and brick are blended into one harmonious whole. The chimney is an architectural gem. Spacious rooms make the “Arkwright” comfortable, as well as distinctive.

A Sleeping Porch
Is useful not only as a healthful fresh air sleeping room but as a spare bedroom, when needed.

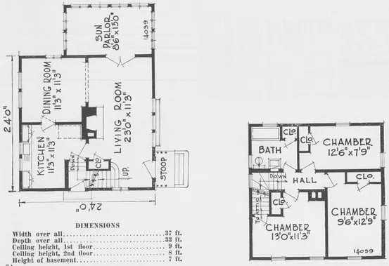
Design 14039-B
BEAUTIFUL in its white resplendency this home will stand out in any community. The interior carries out the promises of the exterior. The rooms are all of good size and handily arranged. The living room in particular with its long sweep and adjacent sun room charms the eye.


“The AVERILL”
NEAT, unique and attractive are the adjectives to describe the “Averill.” The broad front curve of the roof is carried out over a Porte-Cochere on the right, showing architectural ingenuity. Steel sash provide the finishing touch to a fetching home.

Prompt Delivery
Is essential to the satisfactory progress and completion of the building. Our quick service insures against delay.

“The ANNAPOLIS”
LIGHT shingles with dark trim produces a delightful effect. In the Modern English Style. An entrance that is inviting and interesting. There is a breakfast nook off the well equipped kitchen. Notice that the large chamber is 17’ by 12’.

Everything in Service
We give you the benefit of a complete service that will co-operate with you in solving your home building problems. Our service produces satisfied home owners.

The COBLENTZ
THE “Coblentz” is such a picturesque home that it looks like it has been lifted out of some old New York Colony. It is a home of atmosphere and of clean sunlight, in short a “dream home.”

Ask Us
Due to our knowledge and experience we are in position to give you dependable advice and practical building information. Do not hesitate to consult us.
Hints on Bath and Kitchen
Tile Bath Increases Value
An exceptionally successful builder of moderately priced houses was recently asked what features of construction or equipment he considered the most important for the quick sale of a house. Without hesitation he answered: “Good hardware at the front door, adequate heating equipment, and above all a tiled bathroom.” He further explained that he had found in his...
Table of contents
- Title Page
- PREFACE TO THE ATHENAEUM/DOVER EDITION
- Copyright Page
- Table of Contents
- Our Plan Service
- Headquarters for Building, Information
- When Building — Play Safe! Use Correctly Made Plans
- Pause With Us a Moment When
- You Plan Your Home of Dreams
- A Joy of the Modern Home—
- Weather Strips Are Essential For Health, Economy and Comfort - How They Keep Out Rain, Summer’s Dust and Winter’s Cold
- THE USE OF FACE BRICK - Durability, Beauty and Economy in the Face Brick Home
- Build Chimneys—Not Fire-Traps!
- DEPENDABLE WATER SERVICE AT LOW COST - For Your Home, Farm or Country Place
- THE F. E. MYERS & BRO. CO. ASHLAND, OHIO
- A White Seat at a Moderate Price - that will give long service
- Index to Homes
- General Index