Planungsleistungen und Honorare mit BIM
eBook - ePub
Verfügbar bis 5 Dec |Weitere Informationen

Planungsleistungen und Honorare mit BIM

  1. 228 Seiten
  2. German
  3. ePUB (handyfreundlich)
  4. Über iOS und Android verfügbar
eBook - ePub
Verfügbar bis 5 Dec |Weitere Informationen

Planungsleistungen und Honorare mit BIM

Über dieses Buch

Mit Building Information Modelling (BIM) als neuer Planungsmethode steht die Baubranche am Beginn des größten Umwälzungsprozesses ihrer Geschichte. Nach wie vor mangelt es jedoch an einer gesicherten Honorarbasis für die bei BIM-Projekten zu erbringenden Leistungen. Der Klärung der Honoraransprüche im Planungsprozess der BIM-Methodik haben sich die Autoren angenommen und liefern mit diesem Buch einen konkreten Vorschlag zur Honorierung der Planungsleistungen mit BIM. Hierzu haben die Autoren den Planungsprozess über alle Leistungsphasen hinweg detailliert entwickelt und entsprechend der Rollen dargestellt.Neben der Kommentierung der Leistungsbilder mit den Grund- und Regelleistungen (besondere Leistungen), die für BIM-Projekte notwendig sind, enthält das Buch auch die Ableitung der Honorare zu BIM mit Kommentierung und ist somit zugleich Arbeitshilfe und Nachschlagewerk.

Häufig gestellte Fragen

Ja, du kannst dein Abo jederzeit über den Tab Abo in deinen Kontoeinstellungen auf der Perlego-Website kündigen. Dein Abo bleibt bis zum Ende deines aktuellen Abrechnungszeitraums aktiv. Erfahre, wie du dein Abo kündigen kannst.
Derzeit stehen all unsere auf mobile Endgeräte reagierenden ePub-Bücher zum Download über die App zur Verfügung. Die meisten unserer PDFs stehen ebenfalls zum Download bereit; wir arbeiten daran, auch die übrigen PDFs zum Download anzubieten, bei denen dies aktuell noch nicht möglich ist. Weitere Informationen hier.
Perlego bietet zwei Pläne an: Elementar and Erweitert
  • Elementar ist ideal für Lernende und Interessierte, die gerne eine Vielzahl von Themen erkunden. Greife auf die Elementar-Bibliothek mit über 800.000 professionellen Titeln und Bestsellern aus den Bereichen Wirtschaft, Persönlichkeitsentwicklung und Geisteswissenschaften zu. Mit unbegrenzter Lesezeit und Standard-Vorlesefunktion.
  • Erweitert: Perfekt für Fortgeschrittene Studenten und Akademiker, die uneingeschränkten Zugriff benötigen. Schalte über 1,4 Mio. Bücher in Hunderten von Fachgebieten frei. Der Erweitert-Plan enthält außerdem fortgeschrittene Funktionen wie Premium Read Aloud und Research Assistant.
Beide Pläne können monatlich, alle 4 Monate oder jährlich abgerechnet werden.
Wir sind ein Online-Abodienst für Lehrbücher, bei dem du für weniger als den Preis eines einzelnen Buches pro Monat Zugang zu einer ganzen Online-Bibliothek erhältst. Mit über 1 Million Büchern zu über 1.000 verschiedenen Themen haben wir bestimmt alles, was du brauchst! Weitere Informationen hier.
Achte auf das Symbol zum Vorlesen in deinem nächsten Buch, um zu sehen, ob du es dir auch anhören kannst. Bei diesem Tool wird dir Text laut vorgelesen, wobei der Text beim Vorlesen auch grafisch hervorgehoben wird. Du kannst das Vorlesen jederzeit anhalten, beschleunigen und verlangsamen. Weitere Informationen hier.
Ja! Du kannst die Perlego-App sowohl auf iOS- als auch auf Android-Geräten verwenden, um jederzeit und überall zu lesen – sogar offline. Perfekt für den Weg zur Arbeit oder wenn du unterwegs bist.
Bitte beachte, dass wir keine Geräte unterstützen können, die mit iOS 13 oder Android 7 oder früheren Versionen laufen. Lerne mehr über die Nutzung der App.
Ja, du hast Zugang zu Planungsleistungen und Honorare mit BIM von Thomas Bahnert,Dietmar Heinrich,Reinhold Johrendt im PDF- und/oder ePub-Format sowie zu anderen beliebten Büchern aus Jura & Verwaltungsrecht. Aus unserem Katalog stehen dir über 1 Million Bücher zur Verfügung.

Information

Auflage
1
Thema
Jura

Kapitel 1Einführung in Building Information Modeling (BIM)

BauwerksInformationsModell

Der neue Planungsprozess

1Die Baubranche steht am Beginn des größten Umwälzungsprozesses ihrer Geschichte. Planer, Ausführende und Betreiber beginnen bisher vereinzelte Lebenszyklusphasen in einem integrierten dreidimensionalen Modell für Planung, Bau und Betrieb zu vereinen. Daraus ergeben sich neue Formen der kooperativen Zusammenarbeit und Arbeitsweisen. Damit geht auch eine größere Verbindlichkeit und frühzeitige Festlegung des Bauherren einher.
Durch die Veröffentlichung des Stufenplanes Digitales Planen und Bauen2 waren die drei zeitlichen Abfolgen (Abb. 1) zur schrittweisen Einführung von BIM im Infrastrukturbau und Hochbau vom BMVI vorgegeben. Die Umsetzung der Vorbereitungsstufe wurde im ersten Fortschrittsbericht3 überprüft. Ab Ende 2020 beginnt mit der dritten Stufe die regelmäßige Implementierung von BIM bei neu zu planenden Projekten im Bundesverkehrsinfrastrukturbau.
2
Abbildung 1: Schematische Darstellung des Stufenplans4
images/Abb_1_Kapitel_1
3Definiert wird BIM wie folgt:
„Building Information Modeling bezeichnet eine kooperative Arbeitsmethodik, mit der auf der Grundlage digitaler Modelle eines Bauwerks die für seinen Lebenszyklus relevanten Informationen und Daten konsistent erfasst, verwaltet und in einer transparenten Kommunikation zwischen den Beteiligten ausgetauscht oder für die weitere Bearbeitung übergeben werden.“5
4Kennzeichnend für BIM ist, dass das digitale Bauen und Betreiben modellbasiert, kooperativ sowie effizient ist. Dadurch sollen die Transparenz, Planungsgenauigkeit, Termin- und Kostensicherheit erhöht werden. Deshalb stehen bei Objekten mit technischer Ausrüstung sowie anderweitiger technischer Anlagen, bspw. Industrieproduktion, der Raumbedarf und die Kollisionsprüfung im Vordergrund. Damit werden Störungen im Bauprozess sowie die Mängelbeseitigung und die daraus resultierenden Kosten minimiert.
Bezogen auf den Lebenszyklus soll eine Gesamtkostenoptimierung stattfinden: also Planung, Bau, Betrieb und Rückbau. Die Notwendigkeit ergibt sich aus den Lebenszykluskosten einer Immobilie. Bereits mit mittlerem Technikanteil betragen sie nach einer 30-jährigen Betriebs- und Nutzungszeit etwa 80 % der gesamten Lebenszykluskosten.6
Durch die neue Planungsmethode ergeben sich die oben genannten Potentiale und Ziele. Doch alles was in das Modell eingebracht wird, muss vorher bestimmt sein. Je nach Bearbeitungstiefe nimmt die Modell- und damit auch die Kostengenauigkeit zu. Mit einer guten und lückenlosen Dokumentation lässt sich genauer nachverfolgen, wer welche Planänderungen eingebracht hat und wie sich diese auf das Projekt ausgewirkt haben.
Grundvoraussetzungen für BIM sind klare vertragliche Reglungen und fachübergreifende, teamorientierte Zusammenarbeit. Dazu gehört aber auch die verstärkte Kooperation und ein partnerschaftliches Umgehen zwischen allen Beteiligten mit fundiertem Risikomanagement. All dies ist vorab zu klären und dann beim Projektlauf umzusetzen.
Damit Probleme beim Austausch der Daten und Modelle vermieden werden, setzen verschiedene Großkonzerne auf Closed BIM. Dies gilt insbesondere für Big BIM, wo interdisziplinär gearbeitet wird. So wird z. B. auf think projekt, einer virtuellen Projektplattform, oder durch alle Planer auf Revit von Autodesk zurückgegriffen. Alle Beteiligten arbeiten dann mit derselben Software. Schnittstellenprobleme werden so minimiert.
Um weiterhin Wettbewerb zu haben, wird z. B. von den öffentlichen Auftraggebern statt Closed BIM das Open BIM bevorzugt. Die Beteiligten arbeiten weiterhin in der ihnen bekannten Software und der Datenaustausch erfolgt über die IFC-Schnittstelle. Das BMVI fordert deshalb in Ausschreibungen herstellerneutrale Datenformate (IFC) und die Vergabe muss diskriminierungsfrei sein.7 Nach dem international anerkannten Format IFC2x3 folgt im Jahr 2014 die Version IFC4. Findet man in einem Modell oder auch Fachmodell einen Fehler, so kann der Projektpartner sehr einfach mit einer kleinen BCF-Datei (BIM Collaborations Format) darüber informiert und an die entsprechende Stelle im Modell geführt werden. Das BMVI unterstützt kostenfrei die BIM-Anwendung durch Tagungen und Handreichungen und hat auf der Internetseite unter BIM4INFRA2020 Wesentliches veröffentlicht. So hat es zehn Handreichungen, die in einzelne BIM-Themenbereiche einführen, erarbeiten lassen. In Teil 6 werden die 20 wichtigsten BIM-Anwendungsfälle (AWF) erläutert.8
Gebündelt und koordiniert werden die Open BIM unterstützenden Akteure sowohl international, national, als auch regional durch den buildingSMART e.V. Bei Veranstaltungen werden die Weiterbildung und der direkte Austausch gefördert.9
Aufgrund der in Deutschland noch nicht durchgängig existierenden Normierung bringt die neue Planungsmethode mit sich, dass viele Begrifflichkeiten aktuell unterschiedlich belegt sind und daher für Verwirrung sorgen. Der Verein Deutscher Ingenieure (VDI) erstellt deshalb gerade Richtlinien für BIM, damit die Begriffe künftig einheitlich verwendet werden (siehe VDI 2552, Blatt 1–9).10
5
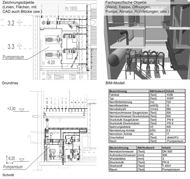
Abbildung 2: Gegenüberstellung des zeichnungsbasierten Ansatzes (links) und des modellbasierten Ansatzes (rechts)11
images/Abb_2_Kapitel_1
6So manche Auftraggeber (AG) und Auftragnehmer (AN) eint die Ansicht, dass eine iterative Planung nicht mehr möglich ist, weil Leistungen nach vorne gezogen werden müssen.12 Dem ist jedoch nicht so. Als Grundlage kann dazu der VBI BIM-Leitfaden13 herangezogen werden. Statt LOD werden da der Modelldetaillierungsgrad (MDG) für die Geometrie und Informationsgehalte vorgeschlagen. Die Vorplanung entspricht dem MDG 100. Sie ist in Abbildung 3 beispielhaft aufgeführt. Auch die anderen Grundleistungen der Planungsphasen und die Ausführung werden zugeordnet. Die Planung und damit auch die Vergütung kann so wie in der HOAI 201314 zugeordnet iterativ vorangebracht werden – getreu dem Motto: „Erst planen, dann bauen“15 oder mit BIM: „Erst digital, dann real bauen“16.
7
Abbildung 3: Prinzip des Lösungskonzeptes für das Bauwerk bei MDG 100
images/Abb_3_Kapitel_1
Vorplanung MDG 100 (Entspricht etwa US-LOD 100)
Lösungskonzept für das Bauwerk mit räumlicher Einordnung, das Tragwerk, technische Ausrüstung und Freianlagen
Relevante Daten, z. B. Flächen, Längen, Höhen, Rauminhalte, Lage, Ortsbezug (Koordinaten)17
8Trotz aller Bemühungen ist bisher eine einheitliche und voreingestellte IFC Klassifikation für den Infrastrukturbau noch nicht vorhanden.18
Durch die Einführung von BIM mit seinem einheitlichen, methodischen, kooperativen sowie interdiziplinären Ansatz machen sich Unternehmen als Auftragnehmer akttraktiver und stellen sich zukunftssicher auf. Der Austausch mit den Beteiligten erfolgt schneller und intensiver als bisher. Entscheidungen werden erleichtert und die Planung transparenter. So kann einfach nachvollzogen werden, wessen Entscheidung sich wie auf die Zeit und Kosten im Projekt ausgewirkt hat. Nur mit BIM wird künftig bei größeren Projekten eine Beteiligung an öffentlichen Vergabeverfahren möglich sein. Vorteilhaft ist die höhere Planungsqualität durch den besseren und einfacheren Austausch mit den Projektbeteiligten. Das digitale Modell begleitet das Bauwerk über seinen gesamten Lebenszyklus hinweg. Langfristig wird sich durch die verbesserte Software und geübtere Projektabwicklung unter Nutzung von bereitgestellten Objekten auch eine Aufwandsminderung gegenüber heute ergeben. Durch Visualisierungen können auch Laien einfacher in die Planung mit einbezogen werden. Kollisionen werden leichter erkannt, Risiken werden minimiert. Dadurch steigt die Kosten- und Terminsicherheit.
Kontrovers diskutiert wird jedoch, welchen Berufshintergrund der BIM-Gesamtkoordinator haben sollte. Um das besser zuordnen zu können, muss zunächst überlegt werden, auf welchen Gebieten Erfahrungen vorhanden sein sollten. Die Beherrschung von 3D-CAD-Programmen sowie Kennnisse über deren Schnittstellen ist eine der wichtigsten Grundlagen. Das müsste also heute nahezu jeder Zeichner können, doch es geht noch weiter. Um den Bauherren gut beraten zu können, sollte er die für das Projekt geeignete Software und die Leistungsfähigkeit der Schnittstellen kennen sowie die Hardware, die erforderlich ist, beschreiben können. Er sollte somit nicht nur die Werkzeuge, sondern auch die Planungs- und Kollaborationssprozesse kennen und diese Technik anwenden können. Er muss auch in der Lage sein die architektonische Gestaltung oder ingenieurmäßigen Konzepte zu verstehen und damit den Projektfluss sicherstellen zu können. Im Erstellungsprozess des digitalen Modells ist das Ausarbeiten der Planungsergebnisse nicht mehr von der zeichnerischen Leistung zu trennen. Das Aufzeigen der Lösung erfolgt dabei beim Konstruieren oder Gestalten des Modells. Dort enwickelt der Architekt oder konstruiert der Ingenieur selbst direkt mit der CAD. Die Zeiten, in denen Skizzen an den Zeichner gegeben wurden, sind in modernen Büros vorbei. Der Konstrukteur des Fachmodells sollte nicht nur sicher im Entwurf sein, denn um das Projekt effizient voranbringen zu können, muss er idealerweise auch über große Erfahrung bei der Ausschreibung von Bauleistungen verfügen. Gut ist auch, wenn er den Bauablauf beherrscht, damit er die Baustelleneinrichtung und Baustellenlogistik gleich in der Planung berücksichtigt. Darüber hinaus muss er Kenntnis darüber haben, auf was der Kunde beim CAFM Wert legt. Nur so kann er diese Informationen bereits bei der Modellerstellung berücksichtigen, was Nacharbeit erspart.
Subsumiert man alles, so benötigt man sowohl als BIM-Gesamtkoordinator als auch für den Konstrukteur des Fachmodells einen erfahrenen Berufsträger mit mehrjähriger Berufserfahrung in verschiedenen Bereichen und einer hohen technischen Affinität. Architekten und Ingenieure müssen sich derzeit weitgehend selbst um die Aneignung dieser Fähigkeiten durch die Berufspraxis oder durch die Weiterbildung nach ihrer Ausbildung kümmern. Das spiegelt sich sicher auch im Gehalt wider, denn diese Spezialisten sind in der Lehre, in den Planungsbüros und in der Verwaltung sowie in den Baufirmen sehr gefragt, aber kaum verfügbar.
Um solch anspruchsvollen Nachwuchs gewinnen zu können, muss künftig sicher mehr Geld bereitgestellt werden. Noch wird BIM nicht in allen Hochschulen und in allen Planungsdisziplinen in der erforderlichen „Fachtiefe“ gelehrt, damit wenigstens Berufsanfänger zur Ve...

Inhaltsverzeichnis

  1. Deckblatt
  2. Impressum
  3. Vorwort
  4. Literaturverzeichnis
  5. Kapitel 1 Einführung in Building Information Modeling (BIM)
  6. Kapitel 2 Prozessbeteiligte, Grundlagen und Erläuterungen zur Entwick­lung des BIM-Prozessleitbildes
  7. Kapitel 3 Der Planungsprozess Objekt­planung § 34 HOAI mit BIM
  8. Kapitel 4 Erläuterung zum Planungsprozess Objektplanung § 34 HOAI mit BIM
  9. Kapitel 5 BIM-Anwendungsfälle
  10. Kapitel 6 Neue Leistungsbilder und Begrifflichkeiten bei Planungs­leistungen mit BIM
  11. Kapitel 7 Vorschlag zur Honorierung
  12. Kapitel 8 Kommentierung der Ableitung der Honorare zu BIM
  13. Kapitel 9 Leistungsbilder und Honorarbewertung der ­Regelleistungen zu BIM
  14. Kapitel 10 Kommentierung der Regelleistungen zu BIM
  15. Schlusswort
  16. Autorenvorstellung
  17. Stichwortverzeichnis