
- 60 Seiten
- German
- ePUB (handyfreundlich)
- Über iOS und Android verfügbar
eBook - ePub
Die Bauten von Walter Maria Förderer im Kanton Schaffhausen
Über dieses Buch
Neue Bedürfnisse und Möglichkeiten im Bauboom der Nachkriegszeit prägten die architektonisch sehr vielfältigen Neubauten. In der Schweizer Kunst- und Architekturgeschichte sticht ein Schöpfer mit seinen plastischen Betonbauten besonders hervor: Walter Maria Förderer. In seinem Heimatkanton Schaffhausen schuf der Bildhauer-Architekt innert kurzer Zeit und in hoher Intensität herausragende Bauten, die alle wesentlichen Aspekte seines architektonischen Schaffens enthalten und seine architekturtheoretischen Gedanken veranschaulichen.
375,005 Studierende vertrauen auf uns
Zugang zu über 1 Million Titeln zu einem fairen monatlichen Preis.
Mit unseren Lerntools kannst du noch effizienter lernen.
Information
Thema
Architektur
Schaffhauser Kantonalbank
Der Hauptsitz der Kantonalbank ist in Schaffhausen ein Höhepunkt der Altstadterneuerung in der Nachkriegszeit – radikal in der Erneuerung, virtuos in der Reaktion auf die städtebauliche Situation. Seiner Funktion gemäss entstand ein selbstbewusst modernes Geschäftsgebäude, das als skulptural durchgestalteter Bau am Rand der Altstadt steht. Begleitet war die Entstehung der Kantonalbank von intensiven Debatten zum Bauen in der Altstadt.
Adresse Vorstadt 53, Schaffhausen
Bauherrschaft Schaffhauser Kantonalbank
Architekten Walter Maria Förderer und Hans Zwimpfer, Basel und Schaffhausen
Projektierung Ideenwettbewerb 1957, Projektwettbewerbe 1959 und 1961 (Förderer Otto Zwimpfer)
Bauzeit 1963–1967
Bis zum Neubau durch Walter Maria Förderer und Hans Zwimpfer war der Hauptsitz der Schaffhauser Kantonalbank ein historistischer Bankpalast an der Bahnhofstrasse. Das Bankgebäude war 1902–1903 durch die Architekten Eduard Joos (1869–1917) und Arnold Huber (1868–1948) aus Bern und Zürich auf der Liegenschaft Zur Löwenburg erbaut worden. Seitdem waren die Bank und ihre Mitarbeiterzahl stark gewachsen. Wegen Raumbedarf planten der Bankrat der Schaffhauser Kantonalbank und der Bankdirektor René Corrodi ab Mitte der 1950er Jahre einen grösseren Neubau. Mit dem Kauf von Liegenschaften war der Bauplatz im Norden der Altstadt grosszügig erweitert worden, ein anderer Standort kam nicht mehr in Frage. Die kleinteilige Bebauung mit Altstadthäusern sollte zu einem grossen Geschäftsbau verwandelt werden. Diese schwierige Ausgangslage führte zu einem längeren, mehrstufigen Planungsprozess.
1957 führte die Kantonalbank zusammen mit der Stadt einen Ideenwettbewerb zur städtebaulichen Gestaltung der äusseren Vorstadt durch. Der Wettbewerb war kommentiert von kontroversen Zeitungsartikeln und Leserbriefen zum Umgang mit der Altstadt, die damals unter grossem Baudruck stand. Wie beim kurz zuvor veranstalteten Ideenwettbewerb zur Stadthaus-Erweiterung waren die Resultate des Ideenwettbewerbs zur neuen Kantonalbank an der Vorstadt unbefriedigend – auch für Förderer, dessen Projekt ausschied.
1959 wurde unter neuen Vorzeichen ein Projektwettbewerb für das Bankgebäude durchgeführt. Der Stadtrat brachte erneut den Wunsch ein, die sechs historischen Häuser an der Vorstadt – eine der beiden Hauptgassen der Schaffhauser Altstadt – zu erhalten. Das Wettbewerbsprogramm liess den Architekten diesbezüglich aber freie Hand. Das Raumprogramm sah neben den Schalterräumen gut belichtete Büroräume für die Handelsabteilung und das Hypothekarwesen vor. Unter anderen wurde das Projekt von Förderer Otto Zwimpfer vom Preisgericht zur Überarbeitung empfohlen.

Die imposante Gebäudehöhe an der Bahnhofstrasse nimmt zur Vorstadt stufenweise um zwei Geschosse ab.
1960 beauftragte die Kantonalbank eine Auswahl der Teilnehmer mit der Ausarbeitung neuer Entwürfe. Das Büro Förderer Otto Zwimpfer wurde zunächst nicht dazu eingeladen. Da die drei erstprämierten Architekten gegen diese zweite Runde im Wettbewerbsverfahren protestierten und absagten, wurde schliesslich auch das Büro Förderer Otto Zwimpfer miteinbezogen, zusammen mit vier anderen Teilnehmern. Im Mai 1961 fiel der Entscheid für das Projekt von Förderer Otto Zwimpfer. Auch die Kommission zur Erhaltung, Pflege und Sanierung der Schaffhauser Altstadt bewertete dieses Projekt insgesamt positiv.
Nach dem Start der Bauarbeiten im Jahr 1963 konnte das Bankgebäude im Mai 1967 eingeweiht werden. Das Wettbewerbsprojekt war unter der Federführung von Walter Maria Förderer entstanden. Die Bauleitung hatte Hans Zwimpfer übernommen, während Förderer die Ausführung der Kantonsschulerweiterung verantwortete, die gleichzeitig im Bau war.

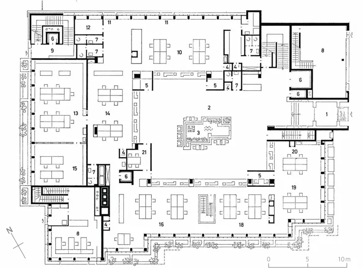
Erdgeschossgrundriss nach der Fertigstellung 1967, mit dem Haupteingang im Osten. Die Bürotrakte umgeben den zentralen Lichthof mit der Schalterhalle.

Der Baukörper ist als stark aufgegliederter, plastisch durchgestalteter Komplex in die Altstadt gesetzt. Modell Wettbewerbsprojekt von 1961.
Der grosse Gebäudekomplex der Kantonalbank liegt am nördlichen Ende der Schaffhauser Altstadt. Dort nimmt der Bau fast die Hälfte des Strassengevierts ein, das an den Schwabentorturm anschliesst. Erstellt ist er in Stahlbeton, die Giebeldächer sind in Holz konstruiert. Im Zentrum des Bankgebäudes liegt der Lichthof mit der Schalterhalle im Erdgeschoss. Um den Lichthof sind vier Gebäudetrakte angeordnet. Drei Trakte grenzen an die umliegenden Strassen, der vierte liegt an einem Zufahrtshof. An die Häuserzeile der Vorstadt, die sich vom Schwabentorturm nach Westen erstreckt, schliesst das Bankgebäude nahtlos an. Das benachbarte Gebäude an der Vorstadt 55 ist ein gleichzeitig von anderen Architekten (Paul und Urs Meyer, Schaffhausen) erstellter Neubau der Kantonalbank. An der Bahnhofstrasse hingegen ist der Bau durch den Zufahrtshof von den folgenden Gebäuden abgesetzt.
Markante Stufungen im Grundriss und in der Höhe sind die grundlegenden Merkmale des Baukörpers. Die beiden Fassaden zu den Altstadtgassen hin – zur Vorstadt und zur Bogenstrasse – springen in je zwei Stufen stark zurück. Dadurch ist die Gebäudeecke stark zurückgenommen. Diese beiden gassenseitigen Trakte unterscheiden sich in der Höhe wie im Dachabschluss von den anderen beiden Trakten: Zur Vorstadt sind es drei Geschosse und ein Attikageschoss unter mehreren seitlich mit Kupferblech verkleideten Giebeldächern. Zur Bahnhofstrasse entwickelt sich die Gebäudehöhe kontinuierlich und nimmt um zwei Geschosse zu. Diese Trakte schliessen über dem Attikageschoss mit Flachdächern ab.

Schalterhalle mit Brunnenplastik La Source von Albert Siegenthaler, Aufnahme von 1983.
Die Fassaden sind glatt verputzt und hell gestrichen. Fensterbänder führen durchgehend über alle drei Strassenfassaden und um die Ecken. Die Laibungen und Gesimse bestehen aus Kunststein. Mit ihren kräftigen Formen fassen die Fensterbank- und Kranzgesimse die komplexe Fassadenabwicklung zusammen.
Der Haupteingang – ursprünglich an der Vorstadt gelegen – führt seit 2012 an der Ecke zur Bogenstrasse schwellenlos in das Gebäude. Im Innern wird die Kundschaft von der repräsentativen Schalterhalle mit dem Oberlicht empfangen. Edles Ulmenfurnier, geschliffener Sandstein und Bronzeverkleidungen waren bis zur Umgestaltung 2012 die Merkmale der Innenräume. In der Mitte der Schalterhalle steht ein Brunnen. Im ersten Obergeschoss führt eine Galerie um die Halle. Um die zweigeschossige Schalterhalle sind die Büroräume angeordnet. Der Grundriss basiert auf einem Raster von 1.9 mal 1.9 Meter, das eine flexible Einteilung mit Leichtbauwänden ermöglicht. Im dritten Geschoss befand sich ursprünglich eine Kantine, im vierten Geschoss waren bis vor wenigen Jahren vermietete Praxis- und Büroräume und zwei Wohnungen untergebracht. Die beiden Untergeschosse enthalten neben den Tresorräumen Autoeinstellhallen. 2012 renovierte das Schaffhauser Architekturbüro Meyer Stegemann die Schalterhalle und ersetzte das Glasdach. Sie liessen die Brunnenplastik (Albert Siegenthaler, 1968) demontieren und die Holz- und Bronzeelemente neu einfärben. Auch die oberen Geschosse wurden seitdem mit dem neuen Farbkonzept versehen. Die Innenausstattung Förderers, die an sich zeitlos edel war und höchstens in der schweren Eleganz ihre Herkunft aus den 1960er Jahren verriet, erschien der Bank nicht mehr zeitgemäss. Gut möglich, dass die originalen, in ihrer Qualität unübertroffenen Oberflächen eines Tages wieder her...
Inhaltsverzeichnis
- Cover
- Inhalt
- Vorwort
- Zum architektonischen Werk von Walter Maria Förderer im Kanton Schaffhausen
- Leben und Werk von Walter Maria Förderer
- Walter Maria Förderers Bauten im Kanton Schaffhausen
- Anhang
- Pläne
- Über das Buch
- Impressum
Häufig gestellte Fragen
Ja, du kannst dein Abo jederzeit über den Tab Abo in deinen Kontoeinstellungen auf der Perlego-Website kündigen. Dein Abo bleibt bis zum Ende deines aktuellen Abrechnungszeitraums aktiv. Erfahre, wie du dein Abo kündigen kannst
Nein, Bücher können nicht als externe Dateien, z. B. PDFs, zur Verwendung außerhalb von Perlego heruntergeladen werden. Du kannst jedoch Bücher in der Perlego-App herunterladen, um sie offline auf deinem Smartphone oder Tablet zu lesen. Erfahre, wie du Bücher herunterladen kannst, um sie offline zu lesen
Perlego bietet zwei Abopläne an: Elementar und Erweitert
- Elementar ist ideal für Lernende und Profis, die sich mit einer Vielzahl von Themen beschäftigen möchten. Erhalte Zugang zur Basic-Bibliothek mit über 800.000 vertrauenswürdigen Titeln und Bestsellern in den Bereichen Wirtschaft, persönliche Weiterentwicklung und Geisteswissenschaften. Enthält unbegrenzte Lesezeit und die Standardstimme für die Funktion „Vorlesen“.
- Pro: Perfekt für fortgeschrittene Lernende und Forscher, die einen vollständigen, uneingeschränkten Zugang benötigen. Schalte über 1,4 Millionen Bücher zu Hunderten von Themen frei, darunter akademische und hochspezialisierte Titel. Das Pro-Abo umfasst auch erweiterte Funktionen wie Premium-Vorlesen und den Recherche-Assistenten.
Wir sind ein Online-Lehrbuch-Abo, bei dem du für weniger als den Preis eines einzelnen Buches pro Monat Zugang zu einer ganzen Online-Bibliothek erhältst. Mit über 1 Million Büchern zu über 990 verschiedenen Themen haben wir bestimmt alles, was du brauchst! Erfahre mehr über unsere Mission
Achte auf das Symbol zum Vorlesen bei deinem nächsten Buch, um zu sehen, ob du es dir auch anhören kannst. Bei diesem Tool wird dir Text laut vorgelesen, wobei der Text beim Vorlesen auch grafisch hervorgehoben wird. Du kannst das Vorlesen jederzeit anhalten, beschleunigen und verlangsamen. Erfahre mehr über die Funktion „Vorlesen“
Ja! Du kannst die Perlego-App sowohl auf iOS- als auch auf Android-Geräten nutzen, damit du jederzeit und überall lesen kannst – sogar offline. Perfekt für den Weg zur Arbeit oder wenn du unterwegs bist.
Bitte beachte, dass wir Geräte, auf denen die Betriebssysteme iOS 13 und Android 7 oder noch ältere Versionen ausgeführt werden, nicht unterstützen können. Mehr über die Verwendung der App erfahren
Bitte beachte, dass wir Geräte, auf denen die Betriebssysteme iOS 13 und Android 7 oder noch ältere Versionen ausgeführt werden, nicht unterstützen können. Mehr über die Verwendung der App erfahren
Ja, du hast Zugang zu Die Bauten von Walter Maria Förderer im Kanton Schaffhausen von Eva Nägeli,Michael Hanak im PDF- und/oder ePub-Format sowie zu anderen beliebten Büchern aus Architektur & Architektur Allgemein. Aus unserem Katalog stehen dir über 1 Million Bücher zur Verfügung.